Салтовка, Гвардейцев Широнинцев
1
комнаты
9
этаж
19
этажей
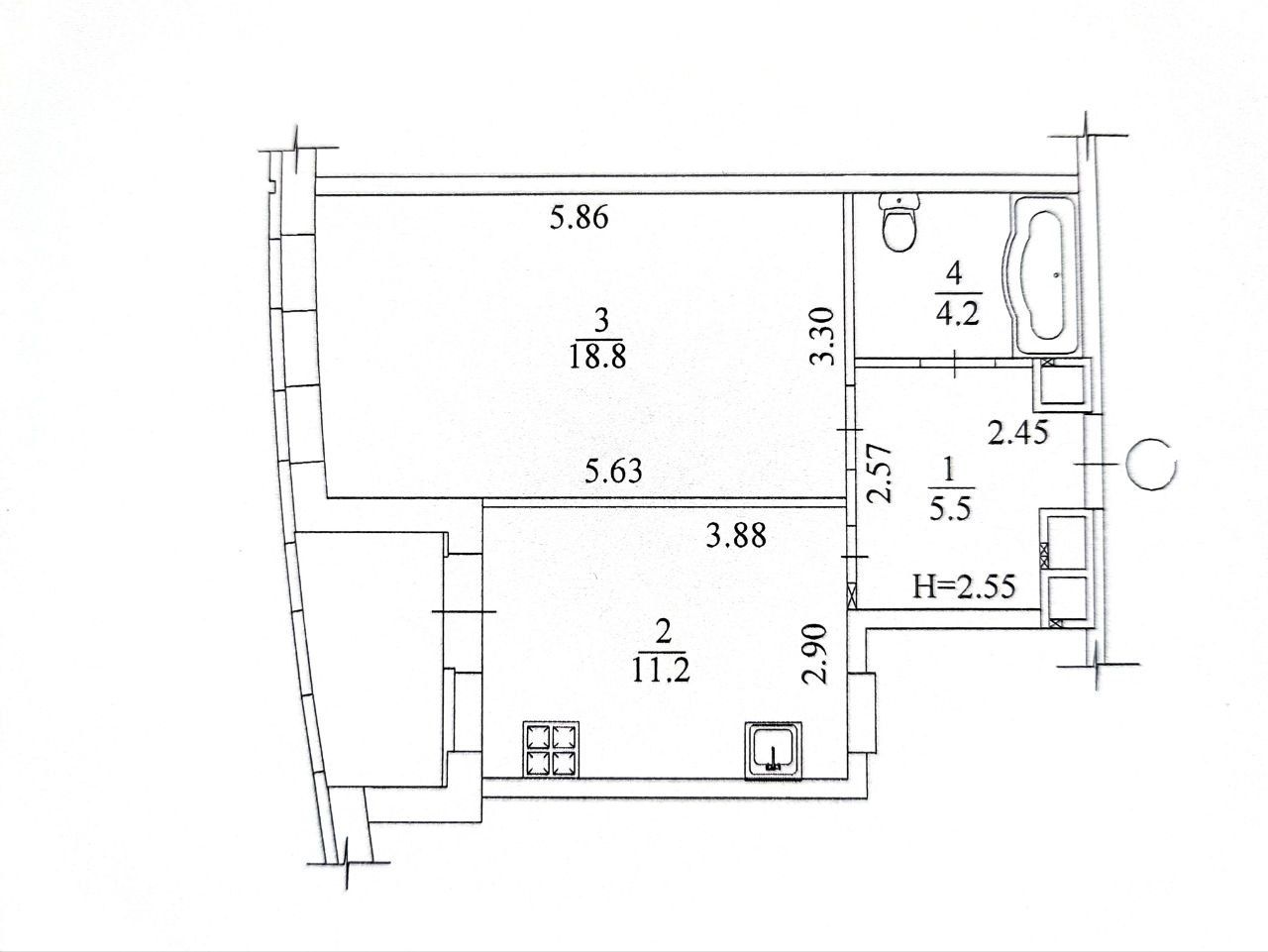
43 м2
/
0 м2
/
0 м2
площадь
Агент 0985677630

Характеристики

Номер
453314479
Район города
Салтовка
Ориентир
Улица
Гвардейцев Широнинцев 72
Общая площадь
43 м2
Жилая площадь
0 м2
Площадь кухни
0 м2

Дополнительные характеристики

Тип комнат
разд.
Тип санузла
раздел
Состояние
жилое
Тип балкона
1/+
Материал дома
к
Связь с менеджером по любому вопросу!